Лаконичный проект небольшой кофейни. Компания друзей небезразличных к кофе, поработав в индустрии, решили открыть свою небольшую кофейню. За помощью они обратились к нам. Когда мы обсуждали будущий проект постоянно звучало слово "качественный". Владельцы бизнеса хотели учесть ошибки в других заведениях и открыть кофейню, в которой все будет на уровне - продукция, сервис, интерьер, атмосфера. Мы работали над интерьером, экстерьером, названием и айдентикой.
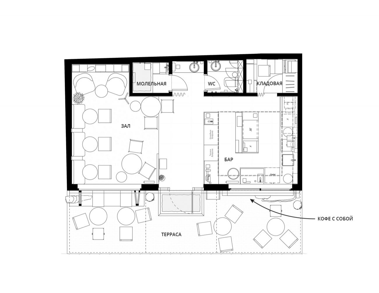
У нас получился современный интерьер с непринужденной атмосферой. Мы старались сделать его простым, но добавить ярких запоминающихся деталей. В отделке натуральные материалы и цвета. Мебель простых и лаконичных форм. Функциональное освещение. Самое интересное решение - натуральные камни в основании лавки и подстолья. Мы разделили кофейню на две зоны: бар с техническим помещением и окном "Кофе с собой", и зал на шесть столиков. Площадь помещения небольшая, поэтому мы сразу предусмотрели уличную террасу. Маркизы на фасаде создают тень в жаркую погоду, а большая клумба с декоративной подсветкой делает место более уютным и привлекает внимание прохожих.
Название Mera отражает концепцию заведения, которое позиционирует себя как эталон небольшой кофейни с качественным кофе и сервисом. А второе значение слова открывает возможность для интересной коммуникации с целевой аудитории. Над айдентикой мы работали параллельно с интерьером, для того, чтобы все было выдержанно в едином стиле. Фирменный стиль современный, простой, лаконичный с ярким акцентным цветом, сочетающимся с цветом деталей интерьера.
Кофейня сейчас находится на стадии реализации. Мы ждем окончания работ, чтобы показать вам фотографии.






