


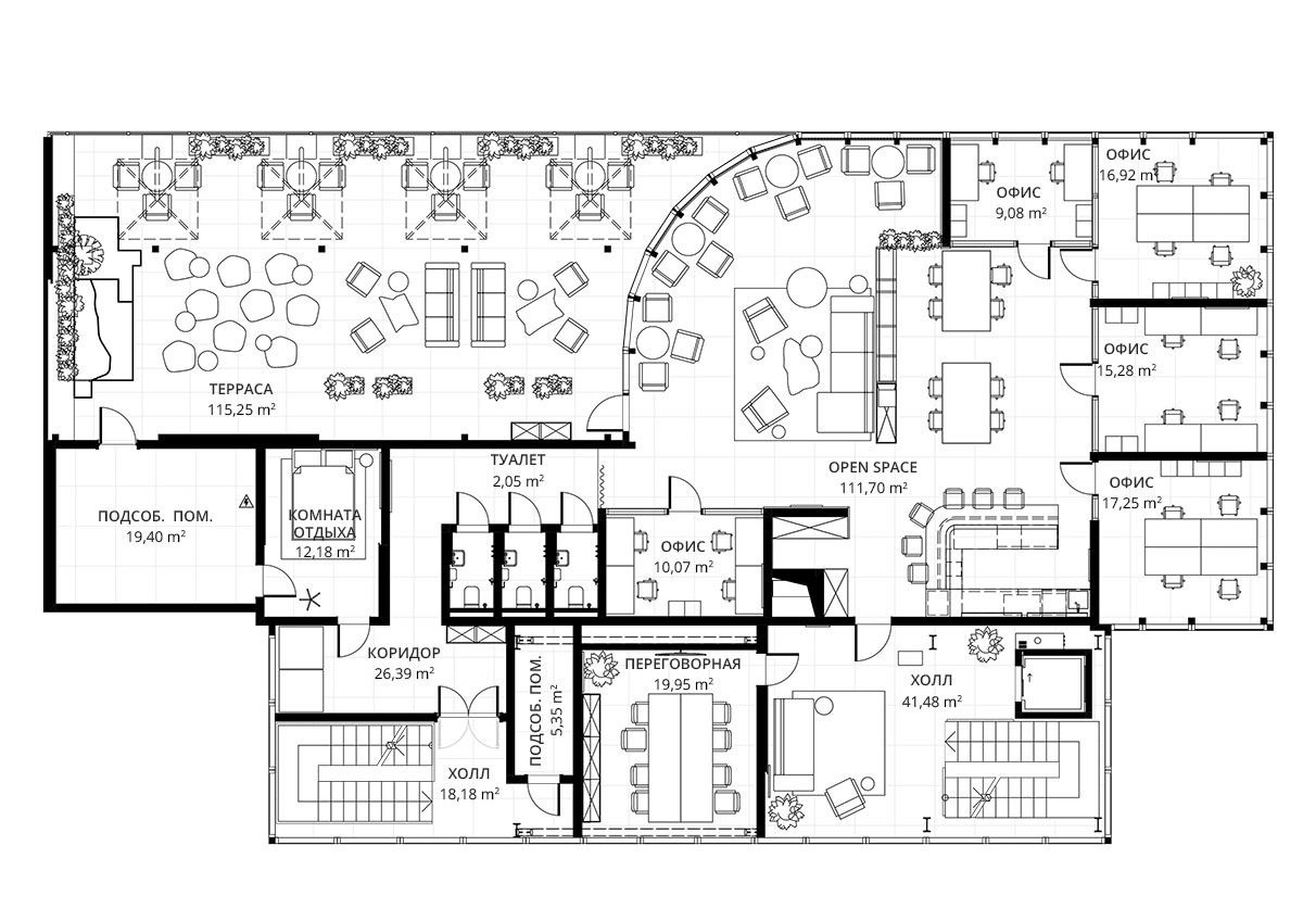
Несколько лет назад мы создавали интерьер для коворкинга Delo и гастробара Nomad. Они заняли 3 этажа старого советского здания. Пока мы работали над проектами, команда коворкинга решила задействовать и крышу помещения - открыть бар с большой террасой. Мы разработали концепцию нового интерьера. Самой главной деталью которого стала круглая барная стойка с большим светильником, состоящим из переплетенных металлических полос. На основе нашей концепции архитекторы разработали проект, и началось возведение конструкций на крыше здания. А мы приступили к закупкам. И начали с самого сложного элемента - светильника-гнезда. Его для нас изготовила студия, специализирующаяся на дизайнерских светильников. После нескольких месяцев проектирования, правок и согласований он отправился на производство. И в этот момент команда коворкинга решила отказаться от концепции бара и сделать на новом этаже продолжение коворкинга.
Главная сложность заключалась в том, что строительные работы уже шли полным ходом и большая часть конструкций уже была возведена. Наша задача была в том, чтобы полностью поменять назначение помещения, сведя к минимуму любые перестройки. От первой концепции осталось остекление полукругом и расположение террасы. Место барной стойки занял open space с рабочими местами, лаундж зоной и столиками кофейни. По периметру расположились несколько отдельных офисов. Площадь террасы немного сократилась. Функционально это продолжение open space, где можно поработать с ноутбуком, выпить кофе или провести деловую встречу. Также на террасе появился проектор и мягкие кресла для кино вечеров и мероприятий. Стилистически мы старались связать новый этаж с уже построенным коворкингом. А самые внимательные могут найти части светильника-гнезда в новом интерьере.





 
                        





















 
     
     
     
    