The second branch of the DELO coworking space. We were inspired by the aesthetics of the first coworking space, but tried not to copy the project. Some elements are repeated here - concrete surfaces, simple geometric shapes, a combination of calm colors with accent colors. But due to more saturated colors and graphic elements, the interior turned out to be less strict and more creative.
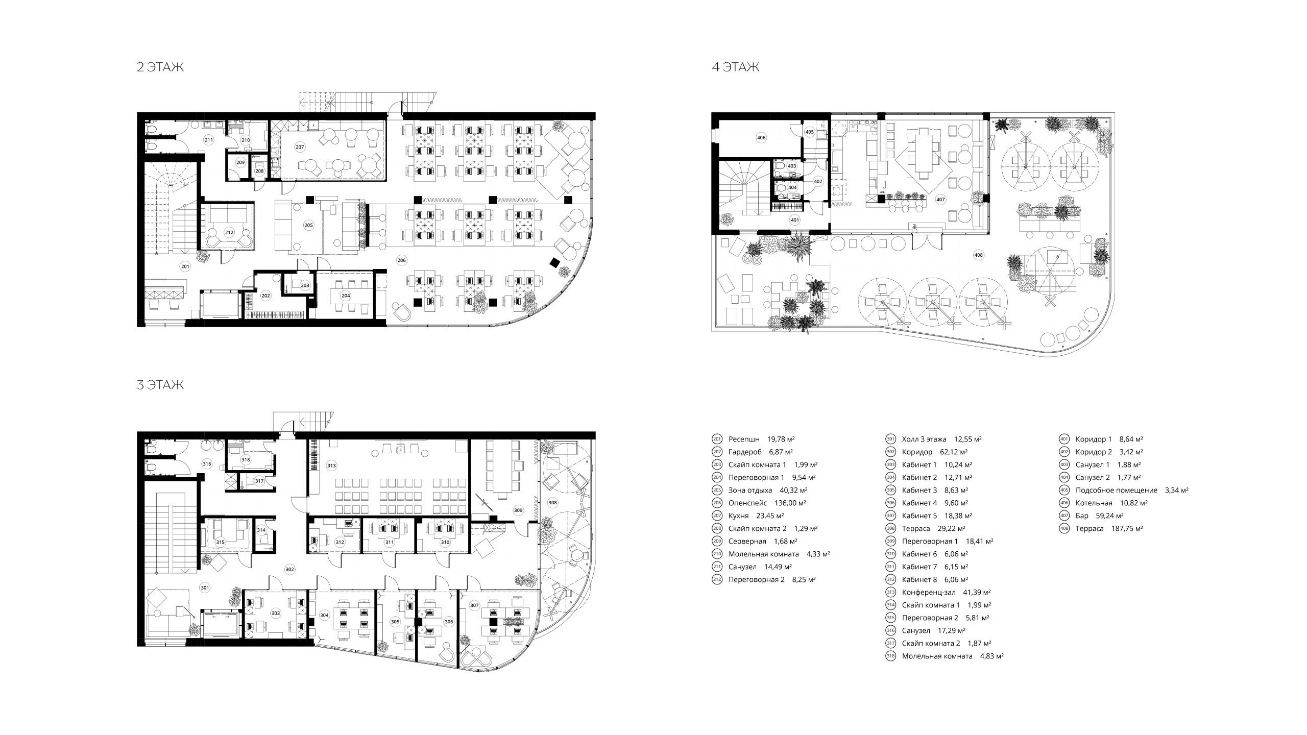
The coworking space is located in a four-story building and occupies the second, third and fourth floors. The main advantage of the room is the strip sectioning. On the second floor, in the brightest part of the room, we located a spacious open space, and along the perimeter there are several offices and meeting rooms. The third floor is occupied by small offices for 2-4 people and a conference room. The fourth floor is occupied by a coffee shop and a terrace where you can relax and work.






