Второй филиал коворкинга DELO. Мы вдохновлялись эстетикой первого коворкинга, но старались не копировать проект. Здесь повторяются некоторые элементы - бетонные поверхности, простые геометрические формы, сочетание спокойной цветовой гаммы с акцентными цветами. Но за счет более насыщенных цветов и графических элементов интерьер получился менее строгим и более творческим.
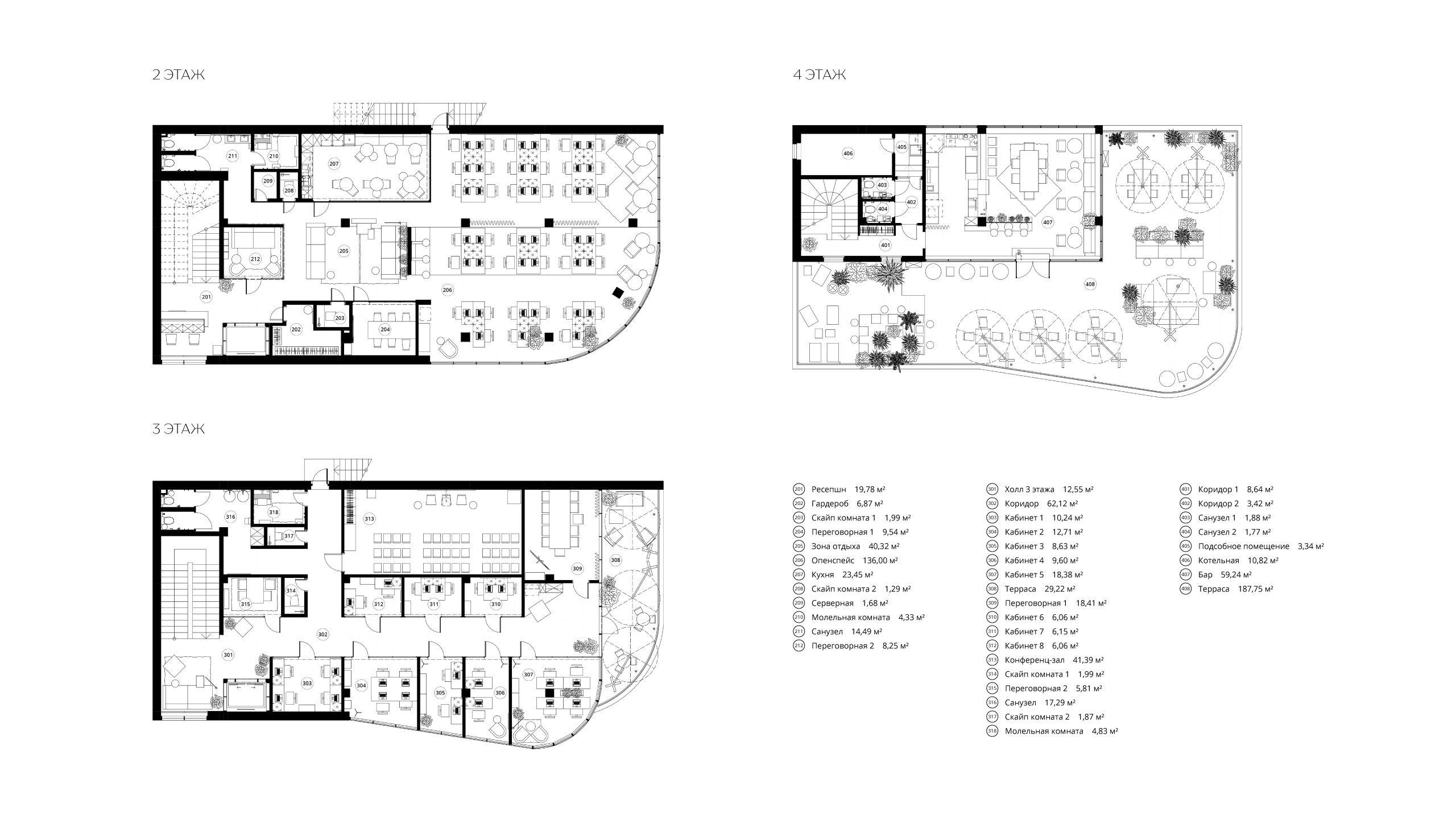
Коворкинг расположился в четырехэтажном здании и занял второй, третий и четвертый этаж. Главный плюс помещения - ленточное осекление. На втором этаже в самой светлой части помещения мы расположили просторный open space, а по периметру несколько офисов и переговорных комнат. Третий этаж занимают небольшие офисы на 2-4 человека и конференц-зал. Четвертый этаж занимает кофейня и терраса, на которой можно и отдохнуть, и поработать.





