DELO DERBENT

DELO DERBENT

  • DELO DERBENT
  • Коворкинг
  • Дербент
  • 818 м2
  • 2024
Коворкинг, как точка притяжения для молодых специалистов

Второй филиал коворкинга DELO. Мы вдохновлялись эстетикой первого коворкинга, но старались не копировать проект. Здесь повторяются некоторые элементы - бетонные поверхности, простые геометрические формы, сочетание спокойной цветовой гаммы с акцентными цветами. Но за счет более насыщенных цветов и графических элементов интерьер получился менее строгим и более творческим.

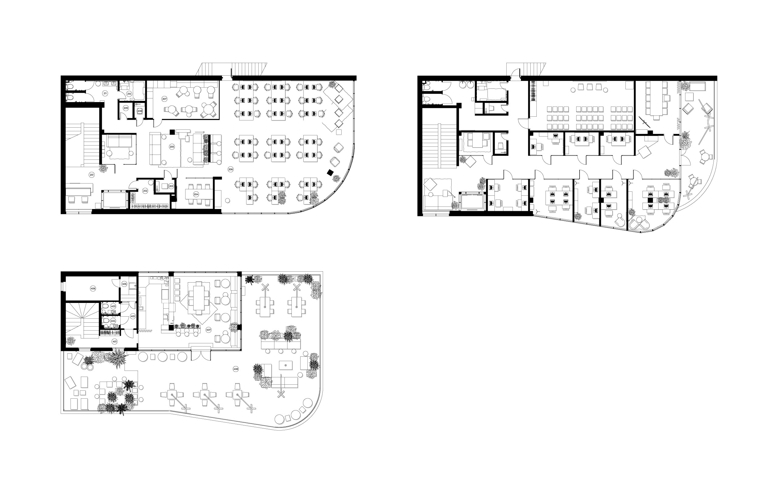
Коворкинг расположился в четырехэтажном здании и занял второй, третий и четвертый этаж. Главный плюс помещения - ленточное осекление. На втором этаже в самой светлой части помещения мы расположили просторный open space, а по периметру несколько офисов и переговорных комнат. Третий этаж занимают небольшие офисы на 2-4 человека и конференц-зал. Четвертый этаж занимает кофейня и терраса, на которой можно и отдохнуть, и поработать.

  • 201Рецепция
  • 202Гардероб
  • 203Skyperoom
  • 204Переговорная
  • 205Зона отдыха
  • 206Open Space
  • 207Кабинет
  • 208Кабинет
  • 209Skyperoom
  • 210Серверная
  • 211Молельная
  • 212WC
  • 213Переговорная
  • 301Холл 3 этажа
  • 302Коридор
  • 303Кабинет
  • 304Кабинет
  • 305Кабинет
  • 306Кабинет
  • 307Кабинет
  • 308Терраса
  • 309Переговорная
  • 310Кабинет
  • 311Кабинет
  • 312Кабинет
  • 313Конференц-зал
  • 314Skyperoom
  • 315Переговорная
  • 316WC
  • 317Skyperoom
  • 318Молельная
  • 401Коридор
  • 402Коридор
  • 403WC
  • 404WC
  • 405Подсобное помещение
  • 406Котельная
  • 407Бар
  • 408Терраса
Хотите обсудить Ваш проект и рассчитать его стоимость?