DELO
- DELO
- Коворкинг
- Махачкала
- 1056 м2
- 2022
Delo - это первый в городе коворкинг такого масштаба, который даст толчок развитию всего региона. Пространство для объединения молодых перспективных специалистов под одной крышей. Современный лаконичный технологичный интерьер с идентичностью места.
В разгар пандемии к нам обратилась команда из Махачкалы, с просьбой сделать для них проект бара и коворкинга. Мы все привыкли к хорошему дизайну в городах миллионниках. Но в большинстве регионов дела идут куда печальнее. Обветшалые фасады, разбитые дороги и поля унылых панельных домов. Тем ценнее люди, которые развивают новые проекты в своих городах. Садитесь поудобнее, это история как раз о том, как превратить полуразрушенное советское здание в точку притяжение для молодых специалистов.
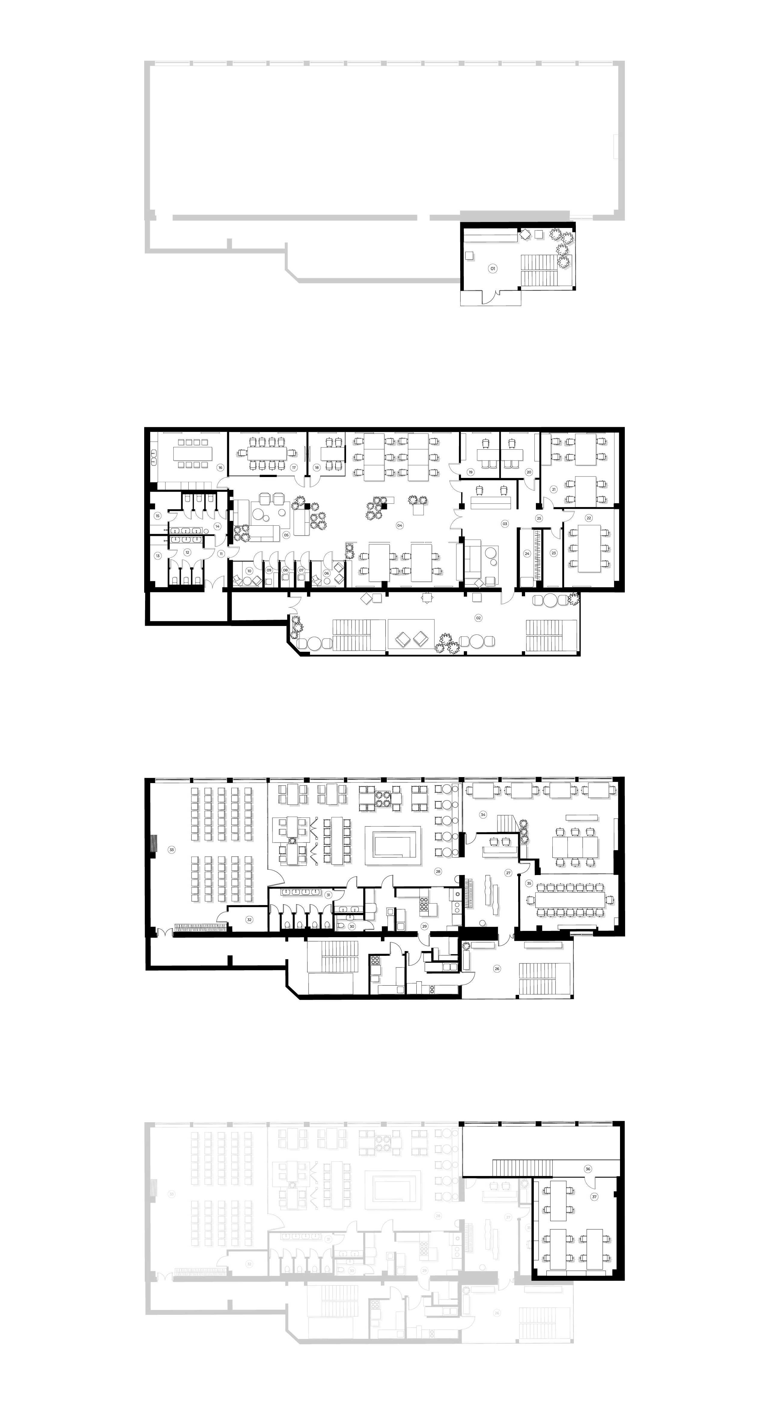
Будущий коворкинг расположен в трехэтажном здании советской постройки на центральной улице города. Расположение отличное, но помещение в ветхом состоянии и с морально устаревшем дизайном. Полный демонтаж был неизбежен. Еще одна сложность, с которой мы сразу столкнулись - это входная группа. Весь первый этаж занят магазинами и вход в коворкинг возможен только со двора. Дворовой фасад тоже глаз не радовал. Поэтому там решено было сделать пристройку, о которой расскажем немного попозже.
После обмеров и обсуждения будущего проекта мы приступили к разработке концепции. Если в двух словах, заказчик хотел получить крутой современный интерьер - много света, натуральных материалов, решений “вне времени”. Для нас же была важна локация. Мы не хотели, чтобы у нас получился проект “московского” офиса, вырванный с корнем и перевезенный в Махачкалу. Мы стремились создать проект с современным прочтением дагестанской идентичности. Создать сплав актуального дизайна, технологических решений и местной культуры. Местная культура, кстати, почти сразу себя проявила в виде пристройки, но об этом немного позже.
Определившись с концепцией мы приступили к планировке. Проект задумывался не просто как офис, а как точка притяжения для молодых талантливых специалистов из разных сфер (предпринимателей, фрилансеров, дизайнеров, IT, маркетологов, фотографов). Главная цель была создать креативную атмосферу для развития.
Основную площадь коворкинга занимает open space с комфортными рабочими местами. Есть несколько отдельных офисов, переговорные комнаты разных размеров и звукоизолированные skyperoomы. Для отдыха и неформальных переговоров - несколько лаунж зон и кухня. А для проведения тренингов, мастер-классов и лекций - конференц-зал на 120 человек. Также на территории коворкинга есть гастробар. Дизайн гастробар NOMAD тоже разрабатывала наша студия и его проект скоро можно будет посмотреть на сайте.
- 1Лестничный холл
- 2Холл
- 3Рецепция
- 4Open Space
- 5Лаундж зона
- 6Переговорная
- 7Skyperoom
- 8Skyperoom
- 9Skyperoom
- 10Переговорная
- 11Коридор
- 12Мужской туалет
- 13Молельная
- 14Женский туалет
- 15Молельная
- 16Кухня
- 17Переговорная
- !8Переговорная
- 19Офис
- 20Офис
- 21Офис
- 22Офис
- 23Серверная
- 24Гардероб
- 25Коридор
- 26Холл
- 27Рецепция
- 28Гастробар
- 29Кухня
- 30Туалет для персонала
- 31Туалет
- 32Кладовая
- 33Конференц-зал
- 34Open Space
- 35Переговорная
- 36Галерея
- 37Офис
Работая над дизайном мы отталкивались от природы региона. В городе иссушенная палящим солнцем земля, а все горы в зелени. Это сочетание мы решили использовать и в интерьере - сочетание современных лаконичных приемов, натуральных материалов, живых растений и национальных мотивов. Отделочные материалы очень простые. Почти все стены в коворкинге окрашены краской. Несколько стен имеют грубую фактурную штукатурку. Полы наливные из бетона.
В проекте множестве перегородок из стекла и металла. Стекла использовали прозрачные, рифленые и черные - все в одинаковых рамах. Деревянные резные перегородки - яркий декоративный элемент интерьера. Рисунок резьбы мы разработали специально для этого проекта, отталкиваясь от традиционного дагестанского орнамента.
За основу взяли нейтральную цветовую гамму - белый, серый, черный и цвет натурального дерева. Ее дополняют акцентные цвета. На втором этаже насыщенный зеленый, как отсылка к горным растениям. На третьем - красный, символизирующий горячее дагестанское солнце.
При комплектации объекта мы ориентировались на качество, практичность и комфорт. Мебель выбирали современных лаконичных форм. Большую часть изготовили на заказ по нашим эскизным чертежам. Столы и рабочие стулья заказали у компании Dezzaro, переговорки Kulagio, кухню и корпусную мебель в “Стильные кухни”. Освещение - Artlight и Центрсвет.
В каждый рабочий стол встроен блок с тремя розетками для техники. На кухне - беспроводные зарядки в столе. У каждой переговорной и skyperoomа - система контроля и управления доступом (вход по магнитным карточкам). В переговорных комнатах в столы встроены USB розетки и интернет розетки.
Обещанная интересная история про пристройку. Мы уже закончили проект и приступили к реализации, когда нам позвонил Шамиль (менеджер проекта) и сказал, что заказчик хочет сделать со стороны двора четырехэтажную пристройку. Как нам рассказал позже Шамиль, пристройки это главная национальная архитектурная особенность региона. Местные жители пристраивают себе целые новые комнаты к квартирам в панельных домах. Пришлось спешно вносить изменения в проект. Но наша пристройка решила несколько проблем: красивая входная группа в коворкинг, дополнительная площадь за счет переноса туда лестницы, дополнительная площадь для служебных помещений гастробара (кухни, склада). На момент фотосъемки не все помещения пристройки были доделаны, общую задумку можно оценить по коллажам.
Руководитель проекта:
- Анастасия Стручкова
Дизайн:
- Анастасия Стручкова
- Ксения Школьникова
- Денис Красиков
- Оксана Стручкова
- Дарья Савина
- Ринат Бикбаев
- Елена Буракова
Реализация:
- Анастасия Стручкова
- Юлия Антонова
Фото:
- Денис Красиков