NOMAD
- NOMAD
- Гастробар
- махачкала
- 233 м2
- 2022
Гастробар Nomad (англ. кочевник) - часть проекта коворкинга Delo. Изначально на месте гастробара должна была быть кофейня - место в котором резиденты коворкинга могли бы отдохнуть, провести деловую встречу или поработать с ноутбуком. Но когда к команде присоединился шеф-повар Владимир Шепелев планы поменялись. Команда ресторатора разработала общую концепцию гастробара, от которой мы отталкивались создавая дизайн.
Концепция КОЧЕВНИК = ПУТЕШЕСТВЕННИК = ПЕРВООТКРЫВАТЕЛЬ. Гастробар - точка притяжения особой социальной категории людей, которые обрели свободу благодаря современным технологиям. Еще с древних времён странники открывали для себя новые земли, традиции и культуру других народов, делились своим опытом, который выражается во вкусе еды и напитков, коммуникации между людьми, их привычках и манерах. Исторически именно путешественники/первооткрыватели рассказали миру о нем самом. И концепция гастробара родилась из идеи создания места для современных кочевников. Места, которое сочетало бы в себе традиции и новаторство, в котором человек бы чувствовал себя свободным от стереотипов и был готов открыть что-то новое.
Работая над интерьером гастробара мы стремились рассказать эту историю с помощью дизайна. Мы использовали принцип современного музея, в котором интерьер - лишь фон для экспозиции, а особый свет раскрывает красоту и форму предметов. Отделка простая, даже немного аскетичная. Главная текстура бетон: барная стойка, наливной пол и декоративная штукатурка на стенах. Часть стен декорирована бетонными зубьями. На фоне нейтральной отделки каждая деталь интерьера выглядит выразительней. Резные декоративные двери, светильники из латуни, натуральное дерево, кожа в отделках стульев.
Резные декоративные двери - самая яркая деталь интерьера. На их создание нас вдохновила традиционная дагестанская резьба по дереву. Это оригинальный орнамент, разработанный нашей студией для этого проекта. Рисунок повторяет резьбу на перегородках в коворкинге Delo, связывая два проекта в единое пространство. Этот же орнамент повторяет декоративный рисунок на полу.
Светильники тоже играют важную роль в интерьере. В пространстве использовано два типа светильников - прожекторы для основного освещения и декоративные светильники с мягким лучом света для камерной обстановки. Декоративные светильники над барной стойкой стилизованы под копыта лошадей. Они заполняют высокий потолок и зонируют пространство. Светильники с металлическими блинчиками расположены над каждым столом. По вечерам они создают теплую и таинственную атмосферу. Круглая форма символизирует гостеприимное теплое южное солнце.
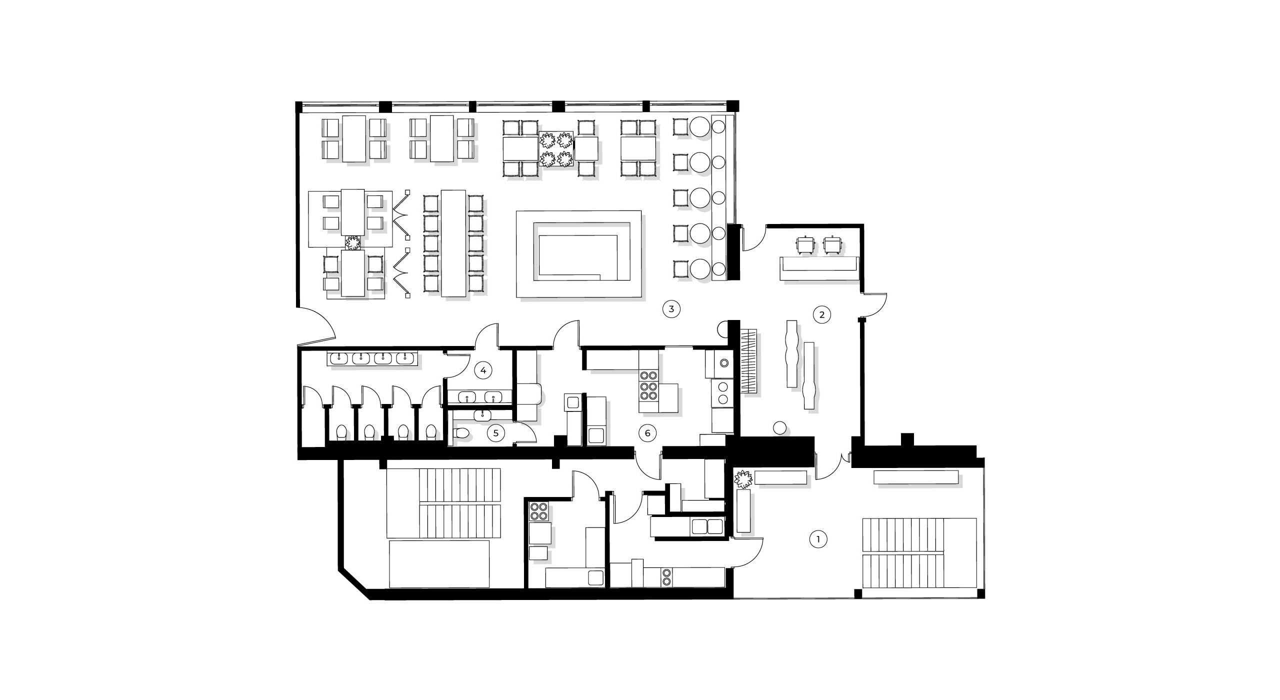
- 1Холл
- 2Ресепшн
- 3Зал
- 4WC
- 5WC для персонала
- 6Помещения кухни
В интерьере много интересных деталей от отделки до мелкого декора, которые захватывают внимание и погружают в атмосферу. Работая в команде с рестораторами у нас получился интересный и цельный проект. Интерьер и кухня гастробара вызывают интерес, их хочется исследовать. Мы желаем проекту Nomad успехов. И приглашаем всех, кто будет в Махачкале посетить этот гастробар.
Руководитель проекта:
- Анастасия Стручкова
Дизайн:
- Анастасия Стручкова
- Ксения Школьникова
- Денис Красиков
- Оксана Стручкова
- Дарья Савина
- Ринат Бикбаев
- Елена Буракова
Реализация:
- Анастасия Стручкова
- Юлия Антонова
Фото:
- Денис Красиков