AVTORKA

AVTORKA

  • AVTORKA
  • Кофейня
  • Санкт-Петербург
  • 212 м2
  • 2020
Многофункциональное общественное пространство

Концепция: Синтез интеллектуального авангарда и интимной атмосферы. Перед нами стояла задача создать не просто заведение, а безопасную гавань для творческой интеллигенции. Это место, где в любое время дня можно уединиться с книгой за чашкой specialty-кофе, а вечером — стать участником поэтического слэма или презентации новой книги. Мы объединили брутальность заводского лофта с утонченной женственностью, вдохновляясь эстетикой и философией Симоны де Бовуар.

Ключевая идея: Трансформация индустриальной «мужской» эстетики в пространство силы, равенства и тепла. Грубая история начала XX века встречается здесь с природной мягкостью, создавая идеальную сцену для диалога и самовыражения.

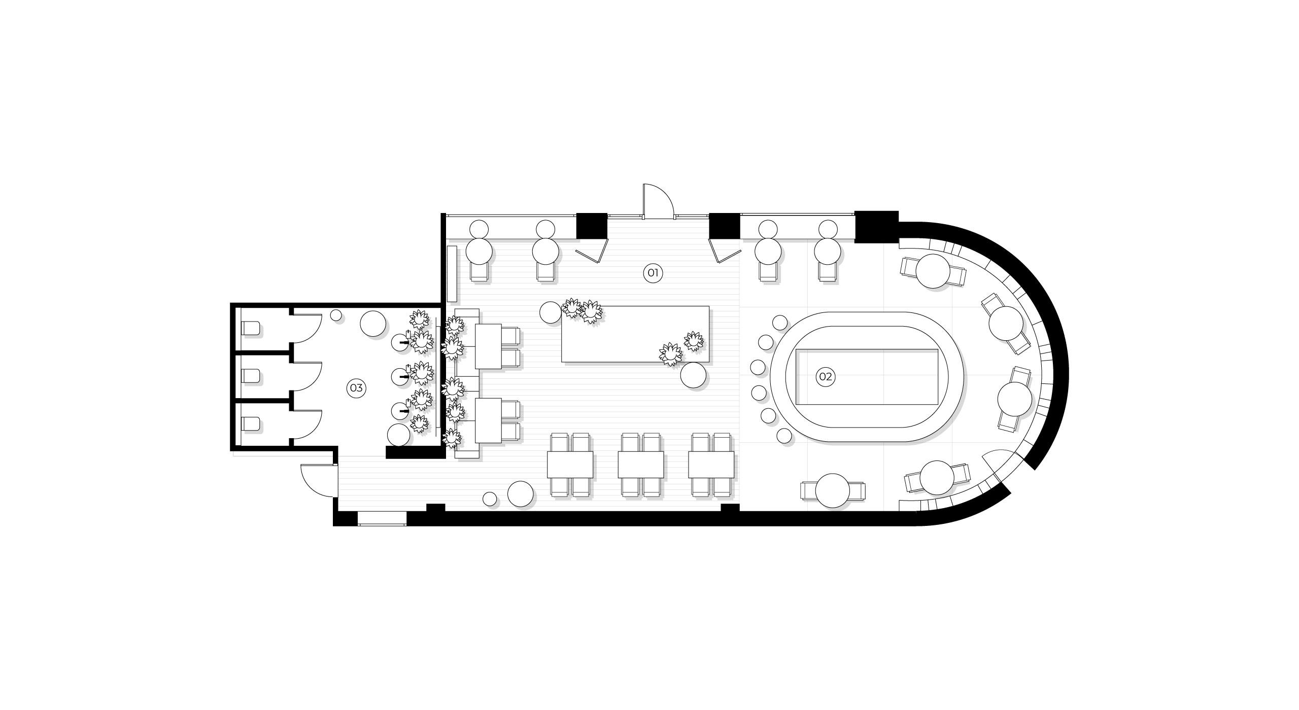
Центральный элемент — декоративная кирпичная кладка в заводском стиле. Она служит визуальным якорем пространства, напоминая о районах Ленинграда, Манчестера или Лиона 1900-х годов, где женское движение только зарождало свой голос. Кирпич остается неоштукатуренным, сохраняя свою фактурную честность.

Чтобы «приручить» суровость кирпича, мы внедрили множество текстильных и природных элементов. Объемные композиции из натурального хлопка визуально разбивают геометрию кладки и вносят тактильную мягкость. Плавные формы круглых светильников смягчают угловатость промышленного пространства. Теплый приглушенный свет создает эффект «объятия», делая помещение безопасным и уютным для долгих бесед и чтения.

Пространство, где каждый чувствует себя в безопасности и может выразить себя в кругу единомышленников. Это не просто кофейня или бар — это третье место (third place) для души, где история говорит на языке современного дизайна.

  • 1Зал
  • 2Бар
  • 3WC
Хотите обсудить Ваш проект и рассчитать его стоимость?