DEO BEAUTY

DEO BEAUTY

  • DEO BEAUTY
  • beauty
  • тбилиси
  • 525 м2
  • 2024
Многофункциональное бьюти-пространство в Тбилиси

В основе концепции — натуральные материалы, природные оттенки и мягкие текстуры. Лаконичные формы и продуманные детали подчеркивают элегантность пространства. Дерево, камень, текстиль — природные фактуры для тактильного комфорта. Мягкое естественное освещение — подчеркивает глубину оттенков и добавляет пространству воздушности.

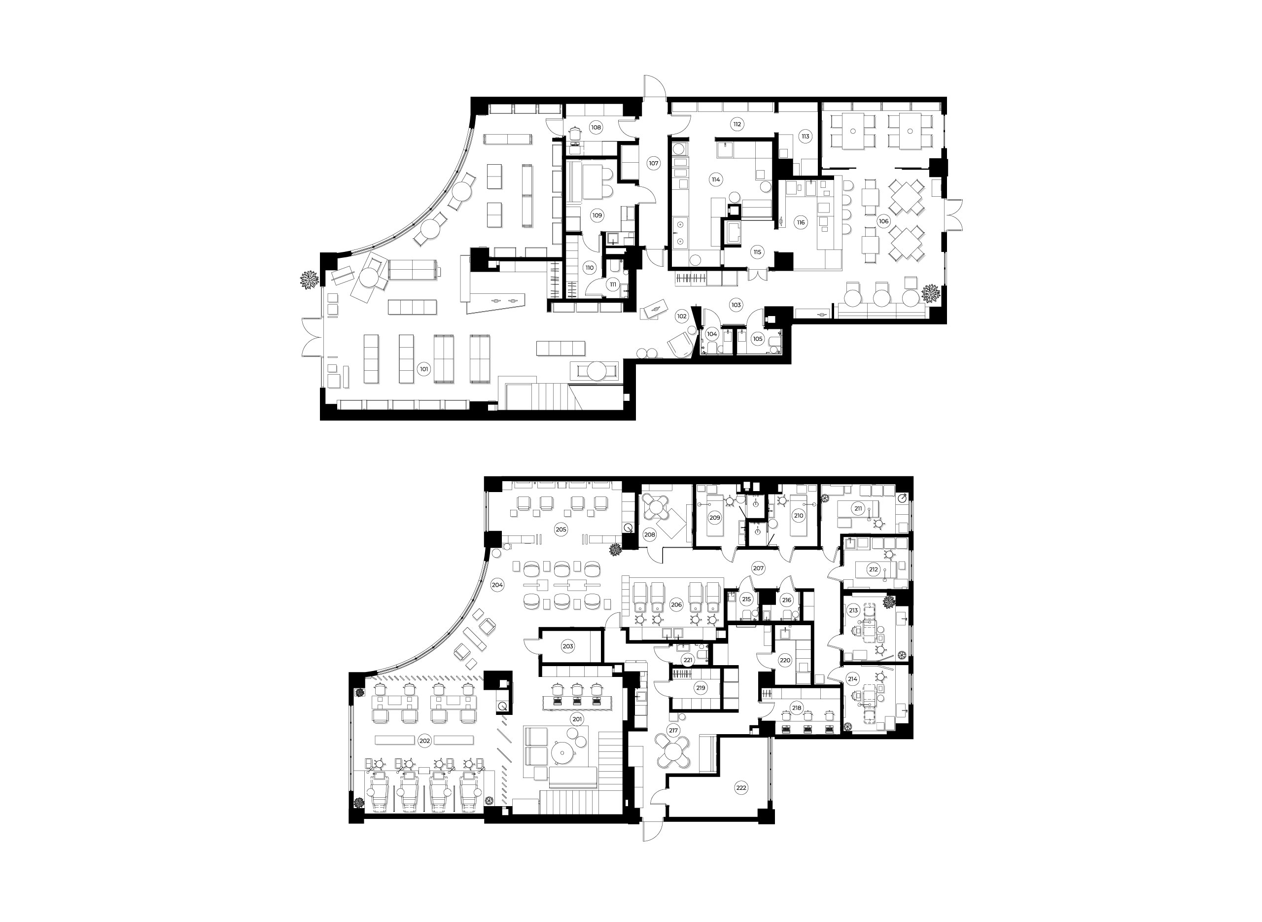
Многофункциональное пространство DEO занимает два этажа. На первом расположена зона ритейла с косметикой и ресторан. Главный акцентный элемент интерьера этой зоны - стена облицованная шпоном корень ореха. Она хорошо просматривается в витрины и является точкой притяжения взглядов прохожих. Интерьер вокруг более темный и спокойный.

Второй этаж занимает салон красоты, косметологические кабинеты спа. Там повторяется контраст темного и светлого, грубого и идеального. Переосмысление природных форм и традиционных мотивов Грузии в использование очень нестандартной мебели и предметов. Использование локальных отделочных материалов и обращение к местным ремесленным мастерским.

  • 101Торговый зал
  • 102Welcome зона
  • 103 Коридор
  • 104Санузел
  • 105Санузел
  • 106Ресторан
  • 107Тамбур
  • 108Склад магазина
  • 109Помещение персонала
  • 110Гардероб
  • 111Санузел персонала
  • 112Коридор кухни
  • 113Заготовочный цех
  • 114Кулинарный цех
  • 115Зона раздачи
  • 116Бар
  • 201Рецепция
  • 202Зал маникюра и педикюра
  • 203Гардероб
  • 204Зал стилистов
  • 205Зал визажистов
  • 206Зона моек
  • 207Коридор
  • 208Детская комната
  • 209Кабинет СПА
  • 210Кабинет СПА
  • 211Кабинет косметологии
  • 212Кабинет косметологии
  • 213Vip кабинет
  • 214Vip кабинет
  • 215Санузел
  • 216Санузел
  • 217Помещение персонала
  • 218Офис
  • 219Гардероб персонала
  • 220Стерилизация
  • 221Санузел персонала
  • 222Котельная
Хотите обсудить Ваш проект и рассчитать его стоимость?