SMOLA
- SMOLA
- Квартира
- Санкт-Петербург
- 169 м2
- 2026
Не каждое пространство рождается домом. Перед нами стояла задача превратить 169 м² «бетонной коробки» в безупречное пространство для семьи, где роскошь встречается с логикой, а приватность - с гостеприимством. Ключевые требования: радикальное зонирование на «взрослую» и «детскую» половины, организация четырех санузлов в рамках допустимых норм, создание парадной гостиной-галереи и продуманное скрытое хранение для всех членов семьи.
Все стены были снесены и возведены заново. Это позволило кардинально разделить пространство на мастер-зону и детский блок, а также решить, казалось бы, нерешаемую задачу — разместить 4 санузла, по одному для каждой спальни.
Сердцем проекта стала мраморная стена из Arabescato Orobico. За этим простым на вид элементом скрывается инженерный триумф: сложнейшая металлическая конструкция удерживает камень весом более 500 кг. С обратной стороны этой же стены, без видимых опор, «парит» четырехметровая столешница. Реализация потребовала филигранной стыковки работы нескольких подрядчиков.
Работа с мрамором стала отдельной эпической главой. По требованию заказчика мы исключили любые залитые смолой каверны. Пестрый камень с разной плотностью сканировали по слэбам, делая цифровую раскладку, чтобы собрать идеальный узор из «здоровых» фрагментов. Этот процесс занял несколько месяцев, но результат того стоил.
Основу атмосферы задало сочетание шпона мореного эвкалипта в общественных зонах и ореха — в приватных. Их теплота и глубина контрастируют с графичным крупноформатным керамогранитом в кухне и холодным сиянием мрамора.
Проект - эталон технического исполнения. Теневые швы, бесшовные стыки паркета и плитки, инкрустации латунью, идеальные примыкания шпона к декоративной штукатурке и стен к потолку без карнизов — вот маркеры профессионализма строительной компании.
Вся корпусная мебель (кухня, остров, стеллажи, панели) спроектирована и изготовлена по нашим чертежам. Отдельностоящая мебель и свет — предмет гордости заказчика, ценителя итальянских и европейских брендов, где каждый элемент имеет свою историю. Он лично «охотился» за ключевыми элементами. Ковер Tai Ping он привез из Парижа и настаивал на его использовании, сделав предмет венцом гостиной. То же упорство он проявил в выборе люстры Patrizia Garganti, отвергнув все дизайнерские варианты.
Этот проект — больше, чем интерьер. Это доказательство того, что пространство можно не просто обустроить, но и наделить душой, характером и строгой, почти математической гармонией. Мы верим, что настоящий дом рождается на стыке смелой мечты заказчика и бескомпромиссного мастерства тех, кто умеет ее воплощать в жизнь.
Гостиная разделена на три функциональные зоны. Кухня с мраморным островом, у окна - стол на шесть персон. Вдоль мраморной стены расположилась диванная зона. Цветовая палитра гостиной складывалась вокруг цвета мореного эвкалипта, рыжей кожи, мрамора и темного гранита. Цвета натуральные - спокойные, сложные.
Мастер-блок состоит из спальни, гардеробной и приватной ванной комнаты. Ореховый шпон, натуральная кожа в обивке кровати и теплая подсветка создают более спокойную и уютную атмосферу. В этой части нет мрамора, но есть настоящая черная скала в ванной комнате, которая своей грубой текстурой спорит с глянцевым камнем гостиной.
Холл является органичным продолжением парадной части квартиры. Мрамор на полу, искусство и глянцевые фасады, которые скрывают от глаз продуманные системы для хранения. За реечной откатной перегородкой - вместительная гардеробная для сезонных вещей.
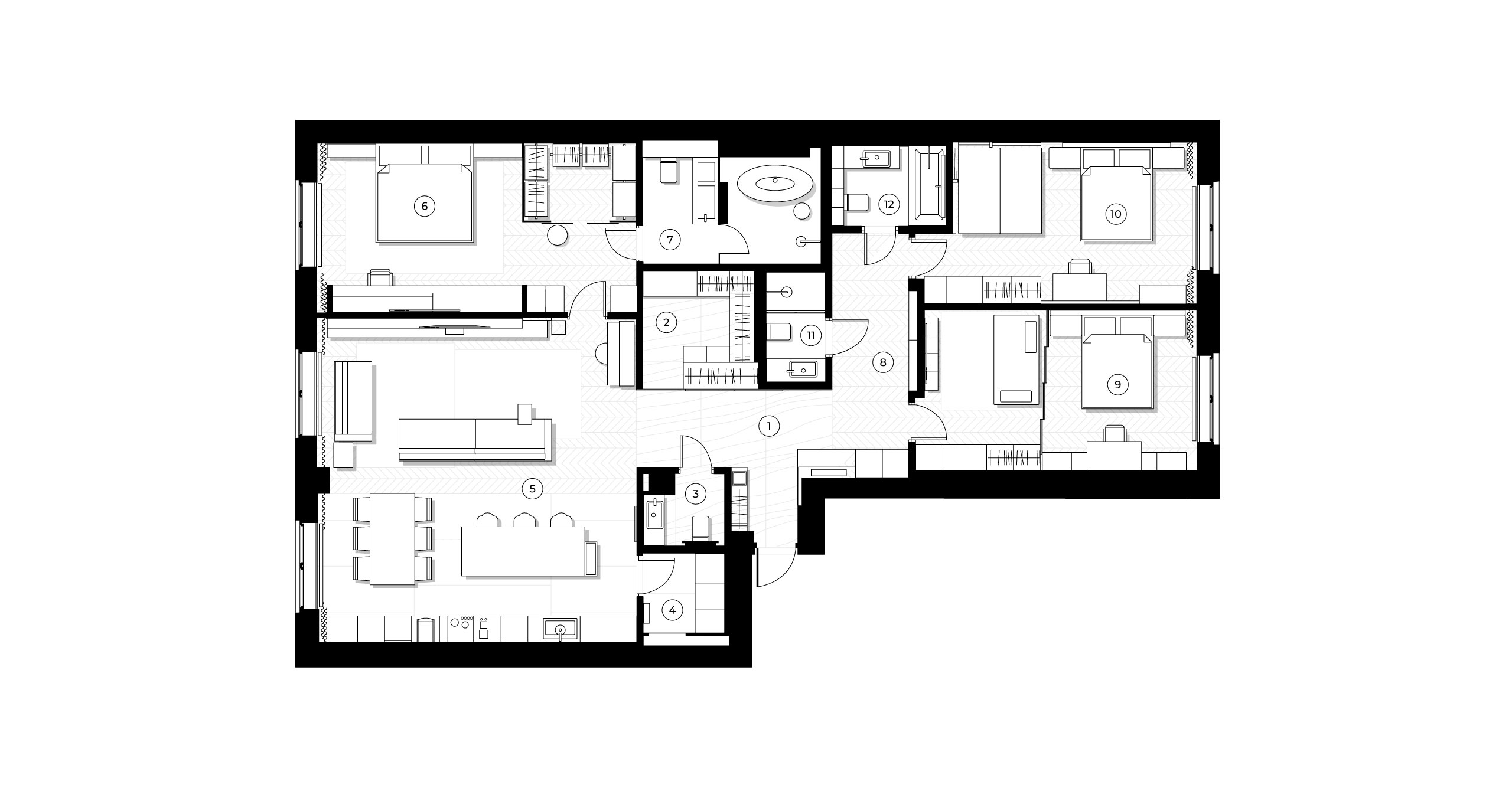
- 1Прихожая
- 2Гардеробная
- 3Гостевой санузел
- 4Хоз Помещение
- 5Кухня-гостиная
- 6Мастер-спальня
- 7Мастер-санузел
- 8Коридор
- 9Комната девочки
- 10Комната мальчика
- 11Санузел мальчика
- 12Санузел девочки
В детских комнатах более насыщенная цветовая гамма. Но и тут мы старались использовать сложные цвета - пыльной розовый и темно-голубой. Функционально комнаты похожи, но каждая обладает своим характером. Индивидуально спроектированные кровати и встроенная система хранения поддерживают плавный ритм интерьера и обеспечивают функциональность.
Руководитель проекта:
- Анастасия Стручкова
Дизайн:
- Дарья Косарева
- Евгения Красикова
Реализация:
- Анастасия Стручкова
- Анна Терновская
Фото:
- Максим Максимов
Видео:
- Ярослав Конев