MR WHITE
- MR WHITE
- Квартира
- Москва
- 171 м2
- 2025
К нам впервые обратилась семья с двумя детьми, которая искала не просто красивый дизайн, а настоящую архитектурную историю. Главным вызовом стало создание «пространства-трансформера» для временного проживания, которое при этом ощущалось бы как светлый, лаконичный и бесконечно воздушный дом. Квартира изначально была «в бетоне» с удачной разводкой коммуникаций, что позволило нам полностью переосмыслить геометрию, не борясь с инженерией, а используя её как фундамент для сложной системы «умного дома».
Основная метафора проекта — чистый лист бумаги и карандаш. Мы стремились к пространству, где функция рождает форму, а форма никогда не спорит с функцией. Это квартира-матрешка:
Верхний слой — спокойная, почти аскетичная оболочка.
Средний слой — тотальное хранение, скрытое за фасадами под отделку.
Нижний слой — сложная инженерия «умного дома», управляющая комфортом.
Легкие ноты японского аскетизма, порядка и структуры растворены в интерьере настолько деликатно, что не кричат о себе, но формируют особую медитативную атмосферу. Все стены покрыты декоративной штукатуркой — покрытие не кричит о своей декоративности, кажется, будто эти стены стояли здесь всегда, с легким разнотоном и приятной фактурой. Пол — крупноформатный паркет и плитка, зонирующие пространство большими блоками. Цветовая палитра родилась из желания создать солнечную, светлую квартиру, где воздух важнее вещей.
Главная сложность случилась уже в процессе: заказчики переехали в другую страну. Все согласования проходили удаленно, по фото и видео, что иногда искажало цвета и фактуры. Это растянуло сроки, но... Мы гордимся тем, что ни одна позиция в проекте не была заменена. Проект реализован на 100% точно по изначальному замыслу. В эпоху бесконечных компромиссов в ремонте это настоящая победа.
Перед нами редкий пример синтеза: сложнейшая инженерия, японская структурность, южная светлая атмосфера и абсолютная функциональность для семьи с детьми. Это квартира, где можно громко шуметь в гостиной, пока в спальне спят. Где все стены хранят вещи, но вы видите только воздух. Где вы нравитесь себе в зеркале всегда. Чистый, честный и продуманный до последнего сантиметра стиль.
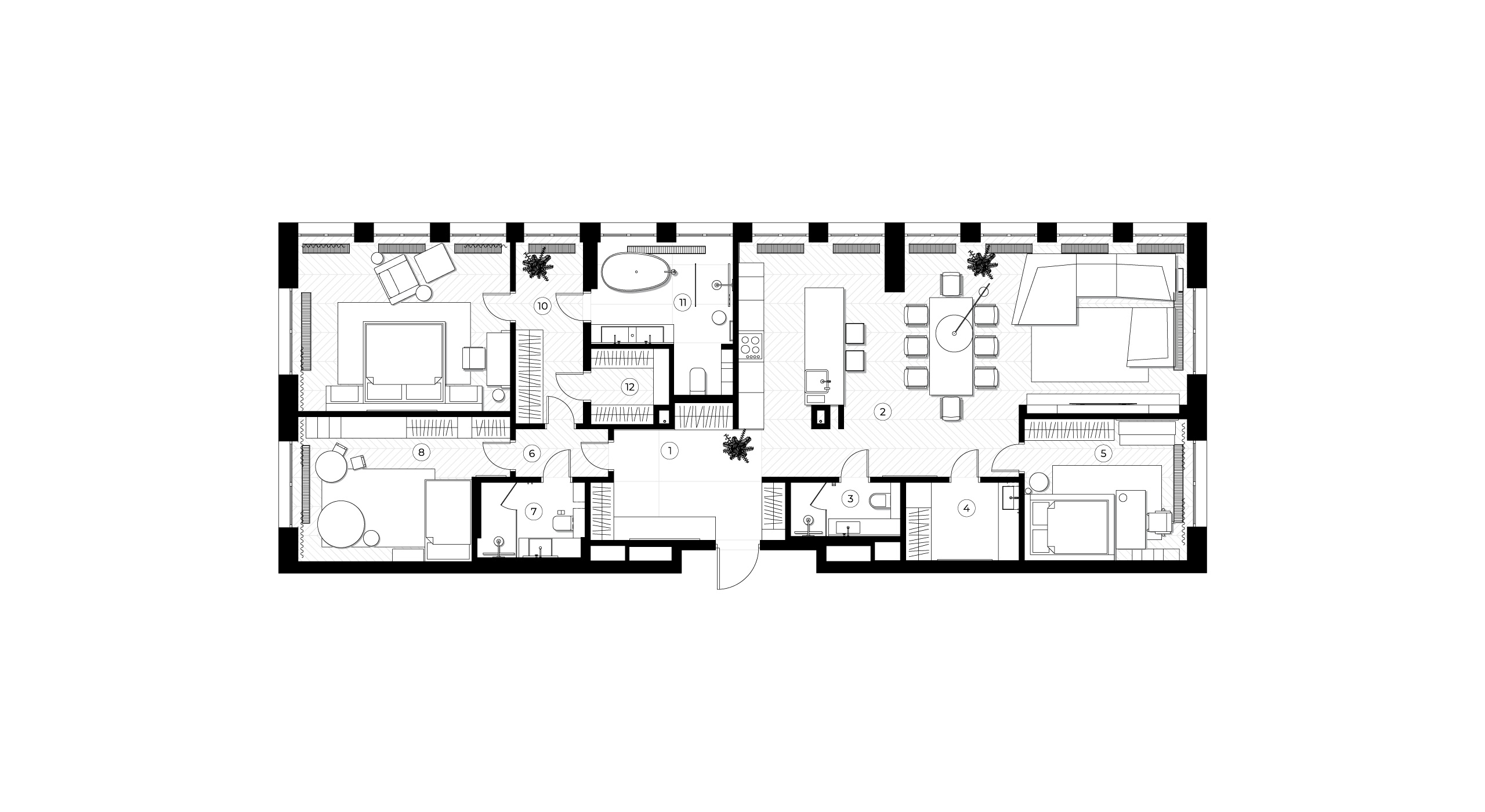
- 1Прихожая
- 2Кухня-гостиная
- 3Душевая
- 4Постирочная
- 5Кабинет
- 6Коридор
- 7Детская ванная комната
- 8Детская
- 9Спальня
- 10Коридор
- 11Ванная комната
- 12Гардеробная
Супруги живут в разном ритме: один встает рано, другой поздно ложится. Мы спроектировали мастер-блок как изолированный апартамент с собственной логистикой. Сценарий утра: подъем → выход из спальни (дверь закрыта, партнер не проснется) → личная ванная комната → гардеробная — и ни одного возвращения в спальню. Зона гостиной с возможным шумом максимально удалена от спальни. Все системы хранения разложены «по пути», исключая лишние движения по дому.
Это пространство мы считаем своей профессиональной победой. Огромные окна в пол выходят на малоэтажные дома — приватность сохранена, и шторы здесь почти не нужны. Но главное — зеркало напротив окна с круговой подсветкой. В то время как многие ошибочно используют узкие технические пучки света (которые слепят и подчеркивают все несовершенства), мы сделали мягкий, рассеянный свет на идеальной высоте. В этом отражении человек всегда будет нравиться себе. Это не просто ванная, это пространство для ежедневного ресурса.
В прихожей каждая стена — это шкаф. Фасады гардеробных систем оформлены под стеновые панели, создавая иллюзию свободных плоскостей. В квартире предусмотрено всё: отдельные гардеробные, постирочная зона, место для уборочного инвентаря и бытовых расходников.
Руководитель проекта:
- Анастасия Стручкова
Денис Красиков
Дизайн:
- Ксения Школьникова
- Ринат Бикбаев
- Юлия Вокуева
Реализация:
- Евгения Красикова
- Юлия Вокуева
- Юлия Антонова
Фото:
- Сергей Ананьев
Видео:
- Юлий Мещеряков