LOST

LOST

  • LOST
  • Квартира
  • Санкт-Петербург
  • 87 м2
  • 2022
Функциональный дизайнс яркимиакцентами

Дизайн интерьера двухкомнатной квартиры в ЖК Черная речка. Хозяева квартиры - семейная пара. Они хотели в своей квартире стильный модный, но при этом функциональный дизайн с яркими акцентами.

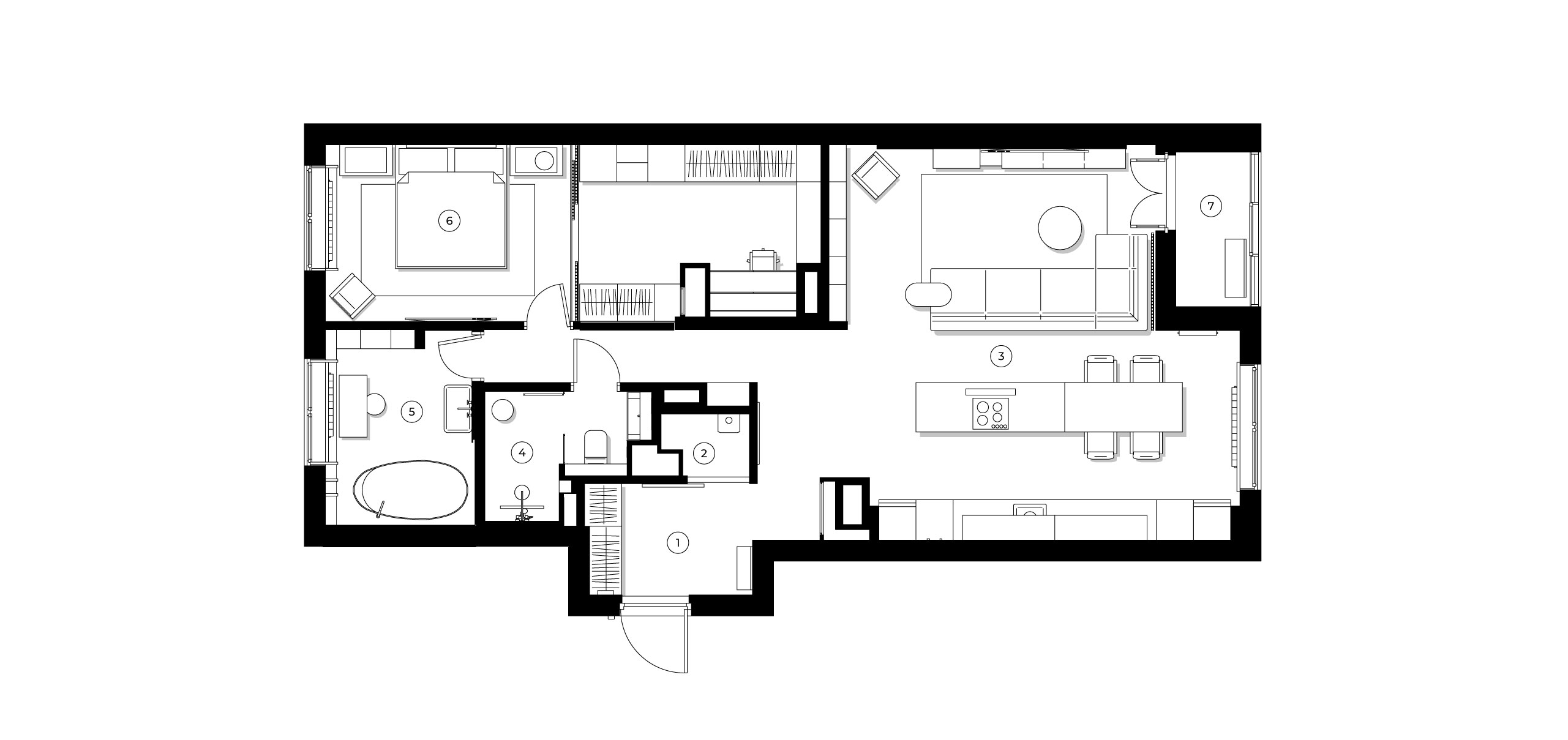
Хозяйка квартиры любит готовить, и попросила спроектировать кухню так, чтобы во время приготовления еды можно было смотреть телевизор. Мы постарались создать удобный и вместительный кухонных гарнитур, дополнив его большим островом с варочной поверхностью и встроенной вытяжкой. Остров переходит в обеденный стол на 4 человека. Напротив кухни - зона гостиной с большим модульным диваном и TV.

В спальне - ничего лишнего, двуспальная кожаная кровать с мягким изголовьем, прикроватные тумбочки и светильники. За деревянной перегородкой - гардеробная с рабочим местом. В квартире удалось разместить два санузла. В одном - отдельностоящая ванна, во втором - душевая. В ванной комнате, по просьбе хозяйки, предусмотрели закрытые места для хранения. Также удалось найти место для небольшой постирочной комнаты.

В проекте много натуральных материалов и сложная цветовая гамма, в которой сочетаются нейтральные природные оттенки с латунью и насыщенными акцентными цветами. Интерьер получился функциональным и интересным.

  • 1Прихожая
  • 2Постирочная
  • 3Кухня-гостиная
  • 4Санузел
  • 5Ванная комната
  • 6Спальня
  • 7Лоджия
Хотите обсудить Ваш проект и рассчитать его стоимость?