GRUNWALD

GRUNWALD

  • GRUNWALD
  • Квартира
  • МОСКовская область
  • 165 м2
  • 2021
Светлая семейная квартира с японскими мотивами

Дизайн четырехкомнатной квартиры для молодой семьи с двумя детьми. Нашей целью было создать минималистичный и функциональный интерьер, в котором будет комфортно как взрослым, там и детям, в рамках ограниченного бюджета.

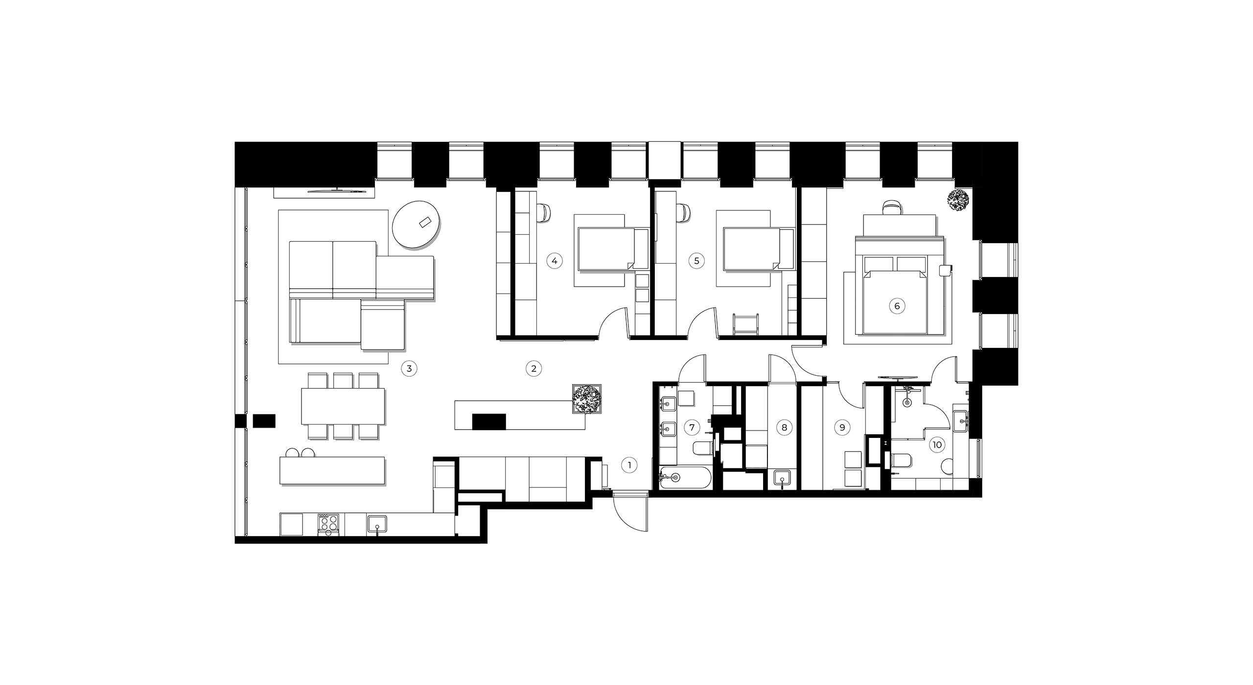
Квартира расположена в современном жилом комплексе в пригороде Москвы. Главные достоинства помещения - свободная планировка, высокие потолки, ленточное остекление, окна в пол во всех комнатах и окно в санузле. Из недостатков - внутрипольные конвекторы, которые решили не демонтировать и потолочные балки, из-за которых было сложно провести вентиляцию и сделать опуск потолков.

Планировка поделила квартиру на две зоны. Общее пространство прихожей, кухни и гостиной - самое удачное решение этого проекта. Наиболее выигрышно оно смотрится благодаря ленточному остеклению и высоким потолкам. Центр этой зоны - дерево рядом со скамьей, символизирующее семью. В приватной части квартиры расположилась единая зона мастер-спальни, гардеробной и душевой, две детские комнаты, ванная и прачечная.

Цветовая палитра светлая, спокойная, с природными оттенками. В приватных комнатах - акценты более темных и глубоких цветов. Преобладают натуральные материалы. Керамогранит под травертин на кухне, мебель с натуральным дубовым шпоном. В спальне - перегородка в японском стиле из матового стекла в деревянном обрамлении, зеркала с градиентным тонированием и стеклянные двери в душевую и гардеробную.

Мебель выбирали простую по форме, но из качественных крутых материалов. Один из самых интересных предметов мебели в проекте - кровать. Низкое изголовье выполняет функцию тумбы, а “крыло” сбоку делает делает более интересным симметричное пространство спальни.

  • 1Прихожая
  • 2Холл
  • 3Кухня-гостиная
  • 4Детская
  • 5Детская
  • 6Спальня
  • 7Ванная
  • 8Прачечная
  • 9Гардероб
  • 10Душевая
Хотите обсудить Ваш проект и рассчитать его стоимость?